Prodej 2+kk
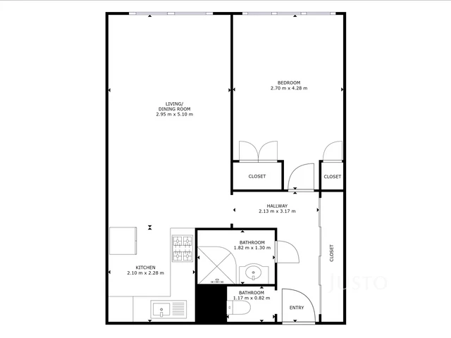
Ve výhradním zastoupení Vám nabízím zprostředkování prodeje velmi příjemného světlého bytu o dispozici 2+kk a podlahové ploše 44,7 m², po částečné rekonstrukci, který se nachází ve 4. nadzemním podlaží panelového domu ve vyhledávané ulici Vánková v Praze 8 - Čimicích. Byt je v družstevním vlastnictví s možností převodu do osobního vlastnictví, po doplacení anuity. Byt je ve velmi dobrém stavu, má vyzděné jádro a novou kuchyňskou linku, která byla zbudována s novou koupelnou cca v roce 2014. Nemovitost je připravena pro nového zájemce k okamžitému nastěhování. Dominantou interiéru je světlý a prostorný, jižně orientovaný obývací pokoj s kuchyňským a jídelním koutem. Moderní kuchyňská linka disponuje dostatečně velkou pracovní plochou, úložným prostorem i vestavěnými a volně stojícími spotřebiči. Druhým pokojem v bytě je světlá ložnice, též s jižní orientací, vybavena vestavěnými skříněmi. Dostatek úložných prostor zajišťují vestavěné skříně v bytě a prostorný sklep (3 m²) v suterénu domu. Navíc je možno využívat společnou kočárkárnu. V tuto chvíli probíhají dokončovací práce na zateplení domu, a tak i díky novým plastovým oknům bude zajištěn tepelný komfort v celém bytě, a rovněž dojde k úspoře nákladů na energie. Následovat bude i renovace společných prostor, což přispěje ke kvalitě bydlení. Obrovskou výhodou lokality, kde se nemovitost nachází, je občanská vybavenost, dopravní dostupnost a klid samotné ulice. V bezprostřední vzdálenosti se nachází Čimický rybník a přírodní park, mateřská i základní škola, pošta, kavárny a restaurace. V dochozí vzdálenosti je supermarket Lidl a vyhledávané OC Krakov. Autobusová zastávka Libeňská je pak vzdálena pouhých 200 m, odkud se pohodlně dostanete na stanici metra „C“ Kobylisy. Zájemce nehradí provizi RK! Majitel si vyhrazuje právo výběru nejvýhodnější nabídky. V případě zájmu Vám rád zprostředkuji financování. Pokud Vás tato nemovitost zaujala, zavolejte mi a rád Vám tento příjemný byt osobně představím. Těším se na setkání s Vámi. Milan Šámal
- cena
- na dotaz
- adresa
- Vánková, Čimice, Praha 8
- ID nabídky
- J10902
- Stav nabídky
- prodáno
- Vlastnictví
- Osobní
- Třída e. náročnosti
- G

































