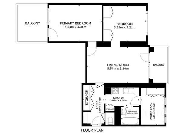
Prodej 4+1 72 m² + terasa 3 m² + lodžie 9 m²
Ve výhradním zastoupení majitele Vám nabízím zprostředkování prodeje mimořádně zajímavého bytu 4+1 s krásnou terasou a lodžií v osobním vlastnictví v ulici Pobočná v Praze 4 Michle. Klíčové informace k nemovitosti: - Byt 4+1 s terasou, lodžií a sklepem - Podlahová plocha 71,9 m² byt + 9 m² terasa + 3,67 m² lodžie + sklep 3,1 m² - Byt je ve stavu k okamžitému užívání, případně k modifikaci dle potřeb nového majitele (kuchyň a koupelna jsou funkční v původním stavu) - Byt se prodává částečně vybavený (vestavěné skříně, nábytek) - Umístění: poslední 4. nadzemní podlaží v domě s výtahem - Dům je zateplený a průběžně udržovaný - V domě je kolárna - Hezký výhled do okolí - Velmi klidná lokalita Vhodnost využití: - Ideální především pro vlastní bydlení, ale možné je i jako investice Výhody lokality: - Skvělá občanská vybavenost a dopravní dostupnost - V pěším dosahu: • mateřská, základní i střední škola, • sportovní a dětská hřiště, psí louka • městský park V Zápolí • H&T potraviny, Potraviny ESO - V docházkové vzdálenosti: • Areál Brumlovka • Zastávka Jemnická (autobus) pouhých 20 m, rychlé spojení do centra Doplňující informace: - Majitel si vyhrazuje právo výběru nejvýhodnější nabídky v případě více zájemců - V případě zájmu zajistím zájemcům atraktivní financování Zaujala Vás tato nabídka? Neváhejte mě kontaktovat – rád Vám byt osobně představím! těším se na setkání s Vámi
- cena
- na dotaz
- adresa
- Pobočná, Michle, Praha 4
- ID nabídky
- J10923
- Stav nabídky
- prodáno
- Budova
- Smíšená
- Stav objektu
- Velmi dobrý
- Plocha užitná
- 72 m²
- Celková plocha
- 87 m²
- Vybavení
- Částečně
- Umístění objektu
- Klidná část obce
- Vlastnictví
- Osobní
- Sklep
- Ano
- Plocha sklepu
- 3.1 m²
- Lodžie
- Ano
- Plocha lodžie
- 9 m²
- Terasa
- Ano
- Plocha terasy
- 3.7 m²
- Podlaží
- 4
- Počet podlaží budovy
- 4
- Výtah
- Ano
- Topení
- Ústřední dálkové
- Topné těleso
- Radiátory
- Bezbariérový přístup
- Ano
- Třída e. náročnosti
- B
- Vyhláška e. náročnosti
- č. 264/2020 Sb.
































