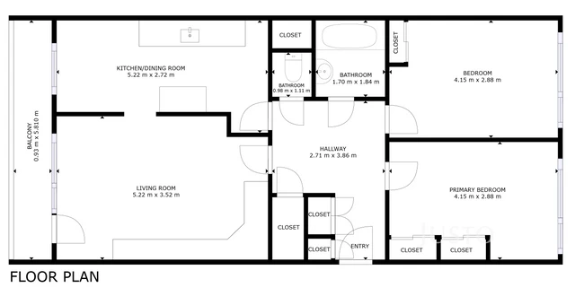
Prodej 3+1 68 m² + lodžie 6 m²
Ve výhradním zastoupení majitele Vám nabízím zprostředkování prodeje velmi příjemného bytu s velkým potenciálem o dispozici 3+1, ke kterému náleží lodžie a sklep. Byt je v původním zachovalém stavu a nachází se ve 2. nadzemním podlaží ve vyhledávané městské části Praha – Libuš v ulici K lukám. ✅ Klíčové informace k nemovitosti: - Dispozice 3+1 s velmi praktickým půdorysem - Plocha bytu 68,6 m² - V bytě je komora o ploše 1 m² - K bytu náleží prostorná zasklená lodžie o ploše 6,3 m² a sklep 1,4 m² - Možnost propojení obývacího pokoje s kuchyní - Jižní orientace obývací části a kuchyně - Severní orientace dvou pokojů s klidným okolím - Byt v původním udržovaném stavu s vyzděnou koupelnou a WC - Bez právních vad - Byt je v udržovaném zatepleném domě s výtahem ✅ Klíčové informace k lokalitě: - Mimořádně klidná lokalita se vzrostlou zelení - Vynikající občanská vybavenost, dopravní dostupnost a o mateřská i základní škola, sportovní a dětská hřiště, o potraviny, restaurace o SAPA tržnice o OC Kunratice - Autobusová zastávka Stará Libuš je vzdálena pouhých 200 m od budovy - Ke kvalitě bydlení přispívá i blízkost přírodní památky Modřanská Rokle a Kunratického lesa, ✅ Důležité informace k prodeji: - Zájemce nehradí provizi RK! - Majitelé si vyhrazují právo výběru nejvýhodnější nabídky v případě více zájemců - Možnost zprostředkování atraktivního financování Průkaz energetické náročnosti budovy v tuto chvíli není k dispozici, dočasně je proto uváděn stupeň "G" Pokud Vás tato nemovitost zaujala, neváhejte mě kontaktovat, rád Vám tento byt s velkým potenciálem osobně představím.
- cena
- na dotaz
- adresa
- K lukám, Libuš, Praha 4
- ID nabídky
- J11141
- Stav nabídky
- prodáno
- Budova
- Panelová
- Stav objektu
- Dobrý
- Plocha užitná
- 68 m²
- Celková plocha
- 76 m²
- Vybavení
- Částečně
- Umístění objektu
- Klidná část obce
- Vlastnictví
- Osobní
- Sklep
- Ano
- Plocha sklepu
- 1 m²
- Lodžie
- Ano
- Plocha lodžie
- 6 m²
- Podlaží
- 2
- Počet podlaží budovy
- 9
- Výtah
- Ano
- Rok výstavby
- 1980
- Topení
- Ústřední plynové
- Topné těleso
- Radiátory
- Voda
- Vodovod
- Odpad
- Veřejná kanalizace
- Bezbariérový přístup
- Ano
- Třída e. náročnosti
- G








































