Prodej rodinného domu 207 m² s pozemkem 331 m² + terasa 12 m²
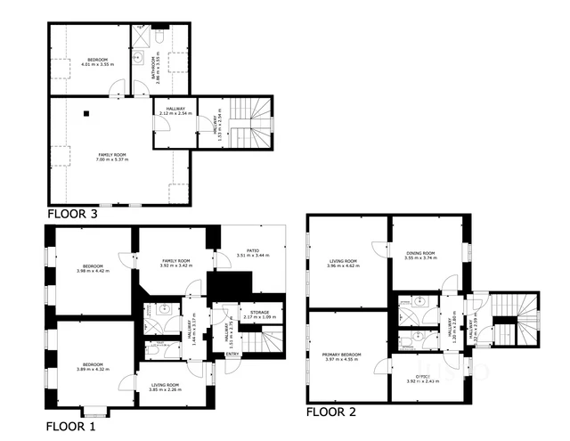
Ve výhradním zastoupení majitele nabízím k prodeji kompletně zrekonstruovaný obytný dům o užitné ploše 207 m², který se nachází v atraktivní a klidné lokalitě Prahy 5 – Zbraslav, na ulici Žitavského. Dům je dle listu vlastnictví rozdělen na 3 bytové jednotky a může tak sloužit jako vícegeneračních rodinný dům. V přízemí se nachází bezbariérová bytová jednotka o dispozici 3+1. Celková plocha bytu s příslušenstvím bez podlahové plochy svislých konstrukcí je 58,9 m² a se svislými konstrukcemi je 66,4 m². K bytu náleží terasa o výlučném užívání o ploše 12,5 m². V prvním patře je bytová jednotka o dispozici 3+1. Celková plocha bytu s příslušenstvím bez podlahové plochy svislých konstrukcí je 65,1 m² a se svislými konstrukcemi je 77,1 m². V druhém patře je podkrovní bytová jednotka o dispozici 2+kk. Celková plocha bytu s příslušenstvím bez podlahové plochy svislých konstrukcí je 58,3 m² a se svislými konstrukcemi je 63,6 m². Každý z bytů disponuje kvalitně provedeným interiérem s moderním designem, který je připraven k okamžitému použití bez nutnosti dalších investic, vyjma kuchyňské linky. Ke každému z bytů náleží jedno parkovací stání. Objekt je napojen na centrální plynové vytápění, což zajišťuje komfortní a efektivní provoz všech bytů po celý rok. Stupeň energetické náročnosti budovy je "B", což je zárukou nízkých provozních nákladů. Dům je situován v žádané části Zbraslavi s výbornou občanskou vybaveností a dostupností služeb. V okolí najdete například supermarket Lidl (990 m), fitness centrum, restaurace a kavárny, či sportovní a rekreační zařízení. Nedaleko je i vlaková a autobusová doprava, což zajišťuje skvělou dostupnost do centra Prahy. Pro více informací o této nemovitosti nebo sjednání prohlídky nás prosím kontaktujte nebo vyplňte formulář.
- cena
- 25 000 000 Kč
- adresa
- Žitavského, Zbraslav, Praha 5
- ID nabídky
- J12174
- Stav nabídky
- volné
- Budova
- Cihlová
- Stav objektu
- Po rekonstrukci
- Plocha užitná
- 207.1 m²
- Celková plocha
- 219.6 m²
- Počet pokojů
- 5 a více pokojů
- Vybavení
- Ne
- Typ domu
- Patrový
- Poloha objektu
- Samostatný
- Umístění objektu
- Klidná část obce
- Vlastnictví
- Osobní
- Plocha pozemku
- 331 m²
- Terasa
- Ano
- Plocha terasy
- 12.5 m²
- Výtah
- Ne
- Rok rekonstrukce
- 2025
- Datum nastěhování
- 1. 2. 2026
- Topení
- Ústřední plynové
- Topné těleso
- Radiátory
- Zdroj topení
- Plynový kotel
- Zdroj teplé vody
- Plynový kotel
- Voda
- Vodovod
- Odpad
- Veřejná kanalizace
- Plyn
- Plynovod
- Možnost parkování
- Ano
- Míst k parkování
- 3
- Třída e. náročnosti
- B
- Vyhláška e. náročnosti
- č. 264/2020 Sb.





















































